Bồn Cầu Nắp Điện Tử INAX ACT-832+CW-KB22AVN
  •  Mã sản phẩm: ACT-832+CW-KB22AVN
  •  Tình trạng: Còn Hàng
     Xuất Xứ: Việt Nam
  •  Lượt xem: 40
     Bảo Hành: 10
  • Giá Khuyến Mãi: 24.157.000 đ
    Giá Thị Trường: 29.370.000 đ - Tiết Kiệm 5.213.000 đ
GIAO HÀNG NHANH CHÓNG
LẮP ĐẶT DỄ DÀNG
100% CHÍNH HÃNG
ĐẢM BẢO GIÁ TỐT
  • Số lượng:
    - +
Chi tiết

Đã đến lúc tạm biệt những chiếc bồn cầu truyền thống để bước vào thế giới tiện nghi của bồn cầu nắp điện tử INAX ACT-832+CW-KB22AVN. Không chỉ gây ấn tượng bởi những đường nét thiết kế tinh giản, sang trọng. Đây là biểu tượng mới cho lối sống thông minh, nơi mọi nhu cầu cá nhân đều được chăm sóc tự động.

1. MÔ TẢ SẢN PHẨM

Nếu bạn đang muốn tìm hiểu chi tiết về sản phẩm bồn cầu nắp điện tử INAX ACT-832+CW-KB22AVN thì có thể lưu ý đến vài thông số dưới đây để đảm bảo lựa chọn và sử dụng cho hiệu quả.

1.1 Thông Số Kỹ Thuật

Tên sản phẩm Bồn cầu nắp điện tử INAX
Mã sản phẩm ACT-832+CW-KB22AVN
Xuất xứ Việt Nam
Kích thước 376W x 746D x 752H mm
Màu sắc Màu trắng
Hệ thống xả Xả POWERFUL VORTEX
Lượng nước xả 4.5L / 3.0L
Thiết kế Hai Khối
Tâm thoát 300mm (+-5)
Áp lực nước 0.05MPa~0.75MPa
Nguồn điện AC 220V, 336W, 50Hz.

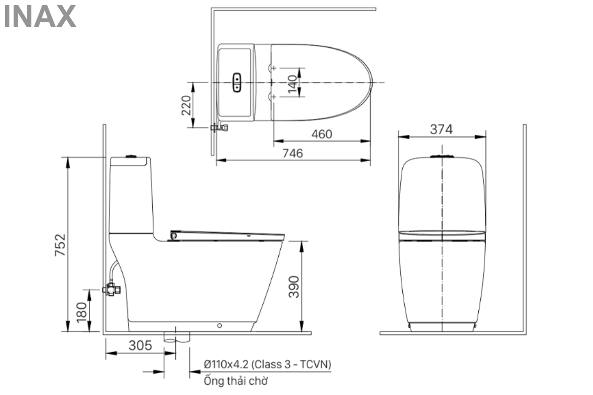
1.2 Bản Vẽ Kỹ Thuật

Qua bản vẽ kỹ thuật bồn cầu nắp điện tử INAX ACT-832+CW-KB22AVN bạn có thể biết được kích thước và hình dáng của sản phẩm, giúp cho việc lựa chọn sản phẩm phù hợp với không gian và style của ngôi nhà trở nên dễ dàng hơn.

ban-ve-ky-thuat-bon-cau-nap-dien-tu-inax-act-832-cw-kb22avn
Bản vẽ kỹ thuật bồn cầu nắp điện tử INAX ACT-832+CW-KB22AVN

3. NƠI CUNG CẤP BỒN CẦU NẮP ĐIỆN TỬ INAX ACT-832+CW-KB22AVN

Việc chọn đúng nhà cung cấp sẽ giúp bạn khai thác tối đa tiện ích của bồn cầu nắp điện tử INAX ACT-832+CW-KB22AVN, đồng thời đảm bảo chính sách hỗ trợ rõ ràng khi cần thiết. Đây là bước quan trọng để nâng cao chất lượng không gian phòng tắm. Liên hệ ngay với chúng tôi qua hotline 0866177222 hoặc truy cập website https://inax-vietnam.com/ để được tư vấn chi tiết và lựa chọn phương án phù hợp.